Equestrian

12-Stall Stable in Barboursville, VA (EDM22010)

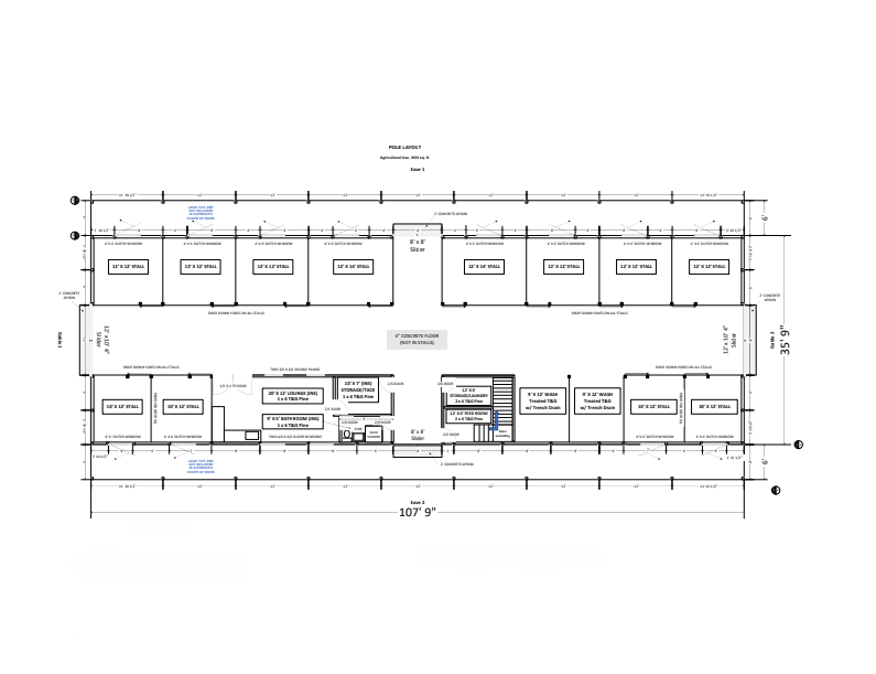
This center-aisle horse barn was built in Barboursville, VA, by Superior Buildings.
Location:
Orange County, VA
Size:
36'x108'x10' with 8' Lean-Tos (52'x108' footprint)

Colors:

  • Sides: White
  • Roof: Charcoal
  • Trim: Black

Options:

  • (2) 8'x108'x8' Lean-Tos
  • (4) 10'x12' Stalls
  • (6) 12'x12' Stalls
  • (2) 12'x14' Stalls
  • (2) 9'x12' Wash Stalls
  • (1) 20'x12' Lounge
  • (1) 9'x5' Bathroom
  • (1) 12'x6' Storage/Laundry Room
  • (1) 12'x6' Feed Room
  • Hay Loft
  • (2) Sets of 12'x10' Split-Sliding Doors
  • (2) Sets of 8'x8' Split-Sliding Doors
  • Sliding Stall Doors with Drop-Down Yokes
  • (12) 4'x4' Dutch Windows
  • (1) 48" Cupola
  • (2) 36" Cupolas
  • 8/12 Pitch Roof
  • 12" Eave and Gable Overhangs

What's not to love about this barn! Besides having room for 12 horses, this barn also has complete living quarters. The sliding doors are aluminum, making them extremely easy to open and close, while also being durable. This is also the first barn we've built that has white stalls, giving this stable a modern farmhouse aesthetic.

Reference Number
EDM22010

Our Process

Listen

Plan

Design

Build

No items found.